Daten
- Objekt-Nr.4465
- OrtKrefeld - Inrath
- ObjektartEtagenwohnung
- Wohnfläche61.00 m²
- Schlafzimmer1
- Badezimmer1
- Balkone1
- Stellplätze1
- Garagen1
Kosten
- KaltmieteImmobilie ist vermietet!
- Heiz-/Nebenkosten-
- Warmmiete-
Objekt
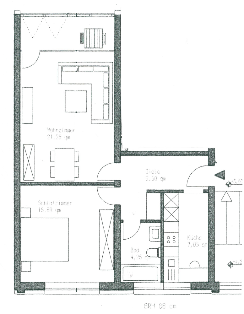
Die 61m² große 2 Zimmer-Wohnung befindet sich in der 2. Etage eines gepflegten Wohnhauses mit insgesamt 9 Wohneinheiten im ruhigen Krefelder Stadtteil Inrath. Die komplette Wohnanlage wurde 2012 umfassend modernisiert.
Sie betreten diese helle Wohnung durch eine kleine Diele, von der aus Sie Zugang zu allen weiteren Räumen haben. Direkt neben der Eingangstür befindet sich die geräumige Küche mit neuem weißen Fliesenspiegel und einem praktischen Handtuchheizkörper. Ebenfalls von der Diele aus gelangen Sie in das ca. 16m² große Schlafzimmer und das ca. 21m² große Wohnzimmer. Beide Räume sind mit einem hochwertigen Laminat ausgelegt. Der helle großzügige Wohnraum hat als Besonderheit noch eine Loggia, die Sie wie einen Wintergarten geschlossen halten können oder im Sommer die mittleren Fenster als Schiebeelement öffnen können. Das Tageslicht-Badezimmer ist hell gefliest und verfügt über eine Badewanne in der man auch duschen kann.
Die Wohnung verfügt über einen separaten Kellerraum und eine überdachte Abstellmöglichkeit für Ihr Fahrrad hinter dem Haus. Der sehr gepflegte Garten kann gemeinschaftlich von allen Mietern genutzt werden.
Geheizt wird die Wohnung zentral mit Gas. Der Wasserverbrauch wird durch Wasseruhren nach Verbrauch abgerechnet. Sie haben die Möglichkeit für 60,00 Euro monatlich zusätzlich eine Garage direkt hinter dem Haus anzumieten.
Die Wohnung ist ab 01.04.2026 bezugsfähig.
Ausstattung
- Folgend die Eckdaten der hellen und frisch renovierten 2-Zimmer-Wohnung:
- 1 Schlafzimmer
- 1 Wohnzimmer
- 1 Tageslichtbad mit Wanne und Fenster
- 1 Loggia / Wintergarten
- Gaszentralheizung
- Warmwasser über digitalen Durchlauferhitzer
- Rollläden an allen Fenstern, teilweise elektrisch
- 1 Kellerraum
- gemeinschaftliche Waschküche
- Gartenbenutzung
- Fahrradunterstand
- Anmietung Garage möglich, € 60,im Monat
Sonstige Angaben
Energieausweis liegt vor
Schreurs Immobilien – Ihr Immobilienmakler in Krefeld und am Niederrhein für Vermietung und Verkauf.
Bitte beachten Sie, dass wir für eine schnellere Bearbeitung ein vollständig ausgefülltes Kontaktformular inkl. Ihrer Adressangabe sowie Ihrer Rufnummer benötigen. Unvollständige Kontaktangaben können von uns leider nicht bearbeitet werden.
Grundrisse
Energieausweis
- Energieausweistyp: Bedarfsausweis
- Verbrauchskennwert: kWh/(m²*a)
- Endenergiebedarf: 85.00 kWh/(m²*a)
- Gültigkeit: 2033-11-28
- Mit Warmwasser: Nein
- Wesentliche Energieträger: Gas
- Baujahr laut Energieausweis: 2013
- Energiekennwert: C
Lage
Das Objekt befindet sich in ruhiger Stadtlage auf der Inrather Straße, unmittelbar an einer Bushaltestelle. Inrath ist ein Ortsteil von Krefeld in Nordrhein-Westfalen und bildet zusammen mit dem Kliedbruch den Stadtteil Inrath/Kliedbruch.
Fußläufig zu erreichen ist das Erholungsgebiet Hülser Bruch mit seinem typisch niederrheinischen Erscheinungsbild. Mit einer Fläche von 430 Hektar ist es das größte Naturschutzgebiet der Stadt Krefeld. Es bietet eine landschaftlich reizvolle Umgebung für Spaziergänge und Fahrradtouren oder für sportliche Aktivitäten wie Walking, Joggen oder Mountainbiken.
Die Krefelder Innenstadt mit ihren zahlreichen Einkaufsmöglichkeiten ist in nur wenigen Autominuten / Haltestellen zu erreichen. Eine gute Verkehrsanbindung, insbesondere an das Autobahnnetz macht Krefeld zu einem interessanten Standort nahe den wirtschaftlichen Zentren an Rhein und Ruhr.
Viola Janowitz



Drucken | Immobilie teilen