Daten
- Objekt-Nr.3483-3
- OrtKrefeld - Hüls
- ObjektartEtagenwohnung
- Wohnfläche120.00 m²
- Schlafzimmer2
- Badezimmer1
- separate WCs1
- Terrassen1
Kosten
- KaltmieteImmobilie ist vermietet!
- Heiz-/Nebenkosten-
- Warmmiete-
Objekt
Aufmerksame Hülser werden das Geschehen um die ehemalige Gaststätte „Zum Goldenen Engel“ verfolgt und das Ergebnis mit Spannung erwartet haben: nun ist es soweit.
Das 1779 erbaute, geschichtsträchtige Gebäude an der Konventstraße erstrahlt in neuem Glanz und wurde von den Eigentümern in den Jahren 2017 - 2022 aufwendig in drei hochmoderne großzügige Mietwohnungen von ca. 119 – 126 qm umgewandelt.
Mitten in Hüls und doch ruhig gelegen, jeweils mit einer wunderbaren Sonnenterrasse versehen, vermitteln die Wohnungen ein Wir-sind-angekommen-Gefühl fernab vom üblichen rechtwinkligen Standard und zeigen, dass sich Denkmalschutz und moderne Architektur nicht ausschließen.
Der Zugang zu den Wohnungen erfolgt über das historische Durchfahrtstor und den abgeschlossenen Innenhof. Da in Hüls das Fahrrad das Verkehrsmittel Nr.1 ist, gibt es hier einen komfortabel ebenerdigen Fahrradabstellraum mit Auflademöglichkeit.
Die Wohnungen im offenen Loft-Stil, die sich über die gesamte Gebäudetiefe erstrecken, sind sowohl über das Treppenhaus als auch über einen Aufzug zu erreichen. Die moderne Ausstattung umfasst hochwertigen Vinylboden in Holzoptik, Fußbodenheizung, Rollläden bzw. Verdunkelungsrollos, eine Video-Gegensprechanlage und straßenseitig dem Denkmalcharakter entsprechende Holzsprossenfenster. Alle Wohnungen verfügen über außergewöhnlich große Outdoor-Bereiche.
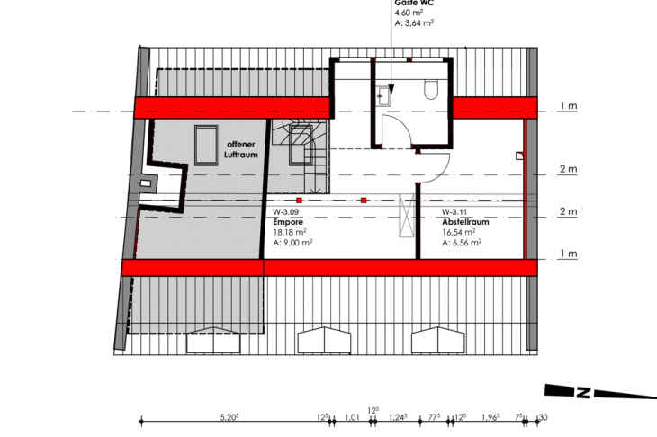
Im 2.OG plus Dachgeschoss erwartet Sie eine außergewöhnliche Maisonette-Wohnung mit einer Wohnfläche von ca. 120 qm. Die untere Ebene verfügt über 2 Schlafzimmer, eine Wohnküche sowie einen zum First offenen, luftigen Wohnraum, an den sich eine riesige Dachterrasse schmiegt. Ganz nah am Himmel über Hüls sind hier weitere ca. 35 qm Sommer-Wohnfläche vorhanden (mit ca. 17qm zur Hälfte in die Wohnfläche eingerechnet) !
Die Dachterrasse verfügt über den Komfort eines Wasseranschlusses (Brunnenwasser) und einen Elektroanschluss.
Urige Balken der historischen Bausubstanz erinnern an die bewegte Geschichte des Hauses. Ein Badezimmer mit ebenerdiger Dusche und ein praktischer Abstellraum ergänzen das Raumangebot. Der wohnlich ausgebaute Spitzboden bietet mit einer Wohnempore und einem Hobbyraum weitere Nutzungsmöglichkeiten – hier ist auch ein Gäste-WC vorhanden.
Im Keller ist für jede Mietpartei ein abschließbarer Kellerraum vorgesehen.
Bitte nehmen Sie zur Kenntnis, dass die Wohnung nicht über einen Stellplatz verfügt.
Ausstattung
- Folgend die komfortable Ausstattung der Wohnung im 2. OG Spitzboden:
- Maisonette-Wohnung
- Erstbezug nach Kernsanierung
- zentral in Hüls
- elektronisch gesicherter Aufzug
- Fußbodenheizung
- Vinylboden in Holzoptik
- Gas-Zentralheizug mit Warmwasserbereitung
- Bad mit ebenerdiger Dusche und Spiegelschrank
- Waschmaschinenund Trockneranschluss im Bad
- Gäste-WC
- Netzwerkanschlüsse
- Video-Gegensprechanlage
- Holz-Sprossenfenster doppelverglast miSchalllschutz zur Straße
- Kunststofffenster weiß
- Verdunkelungs-Rollos bzwJalousien
- pro Wohnung zwei dezentrale Lüftungsanlagen mit Wärmerückgewinnung und Pollenfilter
- großzügige Dachterrasse mit Wasserund Elektroanschluss
- Abstellraum Fahrräder mit Auflademöglichkeit
Sonstige Angaben
Energieausweis liegt vor
Schreurs Immobilien – Ihr Immobilienmakler in Krefeld und am Niederrhein für Vermietung und Verkauf.
Bitte beachten Sie, dass wir für eine schnellere Bearbeitung ein vollständig ausgefülltes Kontaktformular inkl. Ihrer Adressangabe sowie Ihrer Rufnummer benötigen. Unvollständige Kontaktangaben können von uns leider nicht bearbeitet werden.
Grundrisse
Energieausweis
- Energieausweistyp: Bedarfsausweis
- Verbrauchskennwert: kWh/(m²*a)
- Endenergiebedarf: 73.60 kWh/(m²*a)
- Gültigkeit: 2032-08-30
- Mit Warmwasser: Ja
- Wesentliche Energieträger: Gas
- Baujahr laut Energieausweis: 2021
- Energiekennwert: B
Lage
Das Objekt befindet sich imitten im historischen Zentrum von Krefeld-Hüls .
Direkt um die Ecke liegt der Hülser Marktplatz, das lebendige Zentrum des beliebten Stadtteils. Hier trifft man sich, um einen Kaffee zu trinken, am Samstag über den Wochenmarkt zu schlendern oder um sich in einem der anliegenden Restaurants kulinarisch verwöhnen zu lassen. Das kulturelle Leben und traditionelle Feste werden in Hüls gepflegt – so ist der Bottermaat als Handwerkermarkt mit viel Flair weit über die Stadtgrenzen hinaus bekannt.
Nahe gelegen ist auch das Erholungsgebiet Hülser Bruch mit seinem typisch niederrheinischen Erscheinungsbild. Mit einer Fläche von 430 Hektar ist es das größte Naturschutzgebiet der Stadt Krefeld. Es bietet eine landschaftlich reizvolle Umgebung für Spaziergänge und Fahrradtouren oder für sportliche Aktivitäten wie Walking, Joggen oder Mountainbiken.
Mit heute ca. 16.000 Einwohnern ist Hüls der jüngste nach Krefeld eingemeindete Stadtteil mit einer sehr guten Infrastruktur. Hüls ist beliebt bei jungen Familien und verfügt über 6 Kindergärten, 3 Grundschulen und eine Gesamtschule. Andere weiterführende Schulen sind mit dem Bus oder dem Fahrrad zu erreichen.
Alle Einrichtungen des täglichen Bedarfs sind in Hüls vorhanden. Ob eigenes Krankenhaus, ein großer Sportverein mit vielseitigem Angebot, Supermärkte und engagierte Einzelhändler – Hüls hat fast alles. Darüber hinaus bringt Sie die Straßenbahn in 15 Minuten in die Krefelder Innenstadt.
Von Hüls aus haben Sie eine gute Anbindung an eines der dichtesten Autobahnnetze Europas mit sehr guten Verbindungen in die Städte des Rheinlands und des Ruhrgebietes. Nur ca. 32 Kilometer sind es bis zum Düsseldorfer Flughafen und die beliebte niederländische Nachbarstadt Venlo ist lediglich ca. 28 km entfernt.
Viola Janowitz



Drucken | Immobilie teilen