Daten
- Objekt-Nr.2829
- OrtKrefeld - Hüls
- ObjektartEtagenwohnung
- Wohnfläche80.00 m²
- Schlafzimmer2
- Badezimmer1
- Balkone1
Kosten
- KaltmieteImmobilie ist vermietet!
- Heiz-/Nebenkosten-
- Warmmiete-
Objekt
Die ansprechende helle 3-Zimmer-Wohnung befindet sich im 2. Obergeschoss eines im Jahr 1961 erbauten gepflegten Mehrfamilienhauses und verfügt über 80 qm Wohnfläche.
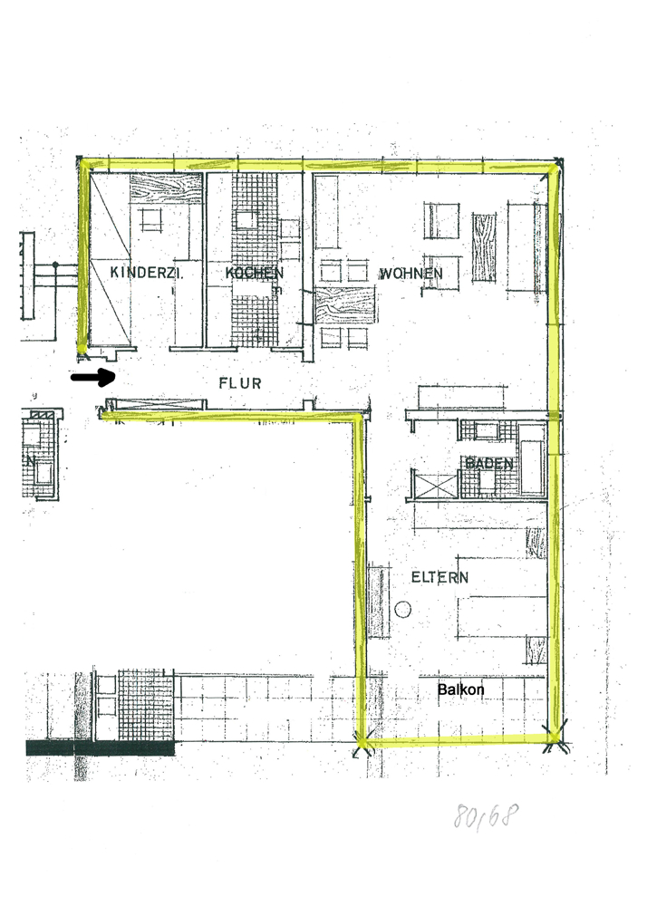
Der gut aufgeteilte Grundriss mit großem Wohn- Essbereich überzeugt ebenso wie die zentrale Lage in Krefeld-Hüls. Die Wohnung betritt man über eine hell geflieste Diele, von der aus das Kinderzimmer (oder Büro), die Küche und der Wohnraum zugänglich sind. Eine kleiner separater Flur führt vom zentralen Wohn-Essbereich in das Badezimmer und das Schlafzimmer.
Das Kinderzimmer bzw. Büro links der Eingangstüre ist ebenso wie die Eingangsdiele mit hellen Fliesen ausgelegt.
Die Küche ist ist mit Vinylboden in Holzoptik ausgestattet und mit einem hellen Fliesenspiegel versehen. Sie bietet Platz für eine gemütliche Frühstücksecke. Das bodentiefe Fenster lässt viel Licht in die Küche fließen. Ihre frischen Küchenkräuter finden Platz auf dem kleinen Küchenbalkon.
Geradeaus findet sich das lichtdurchflutete große Wohn- und Esszimmer mit ausreichend Platz für eine Sofaecke und einen großen Esstisch. Besonders hervorzuheben ist auch hier die Belichtung durch bodentiefe Fenster von zwei Seiten.
Über eine weitere kleine Diele gelangen Sie in das Fensterbad mit Dusche und Badewanne und in den Schlafraum mit überdachtem Balkon in westlicher Ausrichtung.
Wohn- und Schlafzimmer sind einheitlich mit Laminatboden in Nussbaumoptik ausgelegt.
Im Keller steht Ihnen ein abschließbarer Kellerraum zur Verfügung. Außerdem ist für die gemeinschaftliche Nutzung eine Waschkeller sowie ein Fahrradkeller vorhanden.
Die Wohnung ist ab dem 1. April 2021 verfügbar.
Bitte stellen Sie sich in Ihrer Anfrage mit ein paar Worten kurz vor.
Ausstattung
- Zusammengefasst punktet diese Wohnung mit folgender Ausstattung:
- Fußböden Vinyl, Fliesen und Laminat
- Fensterbad mit Wanne und Dusche
- TV über Kabel
- Balkon
- kleiner Küchenbalkon
- überwiegend Rollläden
- abschließbarer Kellerraum
- Fahrradraum im Keller
- Waschraum im Keller
- Nebenkosten inkl. Treppenhausreinigung
Sonstige Angaben
Energieausweis liegt vor
Liebe Kunden,
die Nachrichten über die Eindämmung der weiteren Ausbreitung des Coronavirus (COVID-19) stellt ganze Staaten, Unternehmen und jeden einzelnen Menschen vor große Herausforderungen und bewegen uns alle sehr.
Selbstverständlich möchten auch wir unseren Beitrag dazu leisten, die Ansteckungsrisiken zu minimieren, jedoch dabei unsere Tätigkeiten bestmöglich aufrecht zu erhalten. Deshalb haben wir umfangreiche Maßnahmen beschlossen, um die weitere Verbreitung des Virus COVID-19 einzudämmen. Unser Büro im Schwanenmarkt haben wir zunächst geschlossen. Alle unsere Mitarbeiter sind natürlich weiter für Sie da. Der Großteil unserer Makler operiert von seinen Home-Offices aus normal weiter, eine Erreichbarkeit per Telefon oder auf dem elektronischen Wege ist jederzeit gegeben. Besichtigungen, die wir grundsätzlich in Einzelterminen für unsere Interessenten vornehmen, führen wir weiterhin wunschgemäß nach Absprache durch. Gerne bieten wir Ihnen Alternativen zur physischen Besichtigung (virtuelle Touren, Videos, FaceTime-Besichtigungen).
Hierbei gewährleisten wir natürlich stets die notwendigen Maßnahmen und Sicherheitsvorkehrungen, um unsere Kunden und auch unsere Mitarbeiter bestmöglich zu schützen.
Der Wunsch nach einem schönen und heimeligen Zuhause als Rückzugsort ist in diesen Zeiten sicherlich größer denn je.
Uns, der Firma Schreurs Immobilien, ist es ein großes Anliegen Sie weiterhin bestmöglich zu unterstützen.
Gemeinsam werden wir diese Krise überstehen und hoffen darauf, dass wir alle schon bald wieder unseren Alltag ohne Einschränkungen leben können.
Passen Sie auf sich auf und bleiben Sie gesund!
Ihr Markus Schreurs & Umberto Santoriello
Grundrisse
Energieausweis
- Energieausweistyp: Verbrauchsausweis
- Verbrauchskennwert: 145.00 kWh/(m²*a)
- Endenergiebedarf: kWh/(m²*a)
- Gültigkeit: 2028-06-05
- Mit Warmwasser: Nein
- Wesentliche Energieträger: Gas
- Baujahr laut Energieausweis: 1996
- Energiekennwert: E
Lage
Die Wohnung befindet sich zentrumsnaher Wohnlage in Krefeld-Hüls.
In 10 Minuten erreichen Sie zu Fuß den historischen Hülser Marktplatz, das lebendige Zentrum des beliebten Stadtteils. Hier trifft man sich, um einen Kaffee zu trinken, am Samstag über den Wochenmarkt zu schlendern oder um sich in einem der anliegenden Restaurants kulinarisch verwöhnen zu lassen. Das kulturelle Leben und traditionelle Feste werden in Hüls gepflegt – so ist der Bottermaat als Handwerkermarkt mit viel Flair weit über die Stadtgrenzen hinaus bekannt.
Nahe gelegen ist auch das Erholungsgebiet Hülser Bruch mit seinem typisch niederrheinischen Erscheinungsbild. Mit einer Fläche von 430 Hektar ist es das größte Naturschutzgebiet der Stadt Krefeld. Es bietet eine landschaftlich reizvolle Umgebung für Spaziergänge und Fahrradtouren oder für sportliche Aktivitäten wie Walking, Joggen oder Mountainbiken.
Mit heute ca. 16.000 Einwohnern ist Hüls der jüngste nach Krefeld eingemeindete Stadtteil mit einer sehr guten Infrastruktur. Hüls ist beliebt bei jungen Familien und verfügt über 6 Kindergärten, 3 Grundschulen und eine Gesamtschule. Andere weiterführende Schulen sind mit dem Bus oder dem Fahrrad zu erreichen.
Alle Einrichtungen des täglichen Bedarfs sind in Hüls vorhanden. Ob eigenes Krankenhaus, ein großer Sportverein mit vielseitigem Angebot, Supermärkte und engagierte Einzelhändler – Hüls hat fast alles. Darüber hinaus bringt Sie die Straßenbahn in 15 Minuten in die Krefelder Innenstadt.
Von Hüls aus haben Sie eine gute Anbindung an eines der dichtesten Autobahnnetze Europas mit sehr guten Verbindungen in die Städte des Rheinlands und des Ruhrgebietes. Nur ca. 32 Kilometer sind es bis zum Düsseldorfer Flughafen und die beliebte niederländische Nachbarstadt Venlo ist lediglich ca. 28 km entfernt.
Viola Janowitz



Drucken | Immobilie teilen