Daten
- Objekt-Nr.1738
- OrtKrefeld
- ObjektartDoppelhaushälfte
- Wohnfläche134.09 m²
- Schlafzimmer3
- Badezimmer1
Kosten
- KaltmieteImmobilie ist vermietet!
- Heiz-/Nebenkosten *-
- Warmmiete-
* In den angegebenen Heiz- und Nebenkosten sind die verbrauchsabhängigen Kosten für Heizung, Wasser sowie Strom noch nicht enthalten. Der Mieter schließt eigene Verträge mit einem Energieversorger ab.
Objekt
Es handelt sich hier um eine der wenigen noch erhaltenen Guthofanlagen in Krefeld-Bockum, malerisch gelegen mit einem unverbaubaren Blick in die Natur und in fußläufiger Entfernung zum Krefelder Stadtwald.
In alter historischer Substanz entstehen insgesamt sechs Wohneinheiten. Jede Wohneinheit verfügt über einen eigenen Garten oder einen Balkon in Westausrichtung. Die Wohnungen und Häuser werden von einem Krefelder Bauunternehmen komplett neu erstellt und kombinieren daher Wohnen in historischer Substanz mit dem Komfort eines Neubaus. Fußbodenheizung, moderne, barrierefreie Badezimmergestaltung, edler Parkettboden sind nur einige Details dieses interessanten Objektes. Gerade die attraktive Lage unmittelbar in der Natur sowie der Erstbezug in historische Substanz macht dieses Mietangebot in Krefeld zu etwas Besonderem.
Bitte beachten Sie auch die beigefügte Übersicht der einzelnen Wohneinheiten. Haben wir Ihr Interesse geweckt? Sprechen uns gerne an!
Ausstattung
- Die Ausstattung der lichtdurchfluteten Wohnungen und Häuser lässt keine Wünsche offen. Wohlige Wärme spendet die Fußbodenheizung, die mittels einer Einzelraumsteuerung präzise zu regulieren ist. Die Wohnungen verfügen jeweils über eine große Terrasse mit angrenzenden Garten oder über einen großzügigen Balkon. Die Bäder werden mit hochwertiger Keramikausstattung und Design-Armaturen ausgestattet. Eine Solaranlage auf dem Dach versorgt Sie umweltfreundlich und kostengünstig mit Warmwasser und eine energieeffiziente Gebäudetechnik sorgt für geringe Nebenkosten.
- Die wichtigsten Punkte zusammengefasst:
- 6 Wohneinheiten, Wohnungen, Doppelhaushälften und freistehende Einfamilienhäuser von ca. 90 m² bis 140 m² Wohnfläche in historischer Substanz
- Erstbezug nach Komplettsanierung
- Wohneinheiten mit Terrasse und eigenem Garten oder Balkon
- Stellplätze und Garagen separat anmietbar
- Kaltmiete ab 10,30 € bei hochwertiger Grundausstattung, provisionsfrei für den Mieter
- Solaranlage für Warmwasseraufbereitung
- Energieeffizient modernisiert
- traumhafte Lage an ruhiger Anliegerstraße mit Blick in die Natur
- unverbaubarer Blick von den Gärten
- Fußbodenheizung mit Einzelraumsteuerung
- Exklusive Grundausstattung
- Riemchenwand in jeder Wohneinheit
- Fertigstellung Ende 2015 bzw. beim freistehenden Einfamilienhaus März 2016
Sonstige Angaben
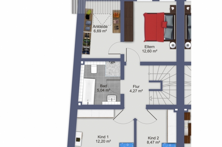
Grundrisse
Energieausweis
- Energieausweistyp: Bedarfsausweis
- Verbrauchskennwert: kWh/(m²*a)
- Endenergiebedarf: 21.70 kWh/(m²*a)
- Gültigkeit: 2024-11-01
- Mit Warmwasser: Nein
- Wesentliche Energieträger: Gas
- Baujahr laut Energieausweis: 1890
- Energiekennwert:
Lage
Die hier angeboten Miethäuser und -wohnungen befindet sich im begehrten Krefeld - Bockum und liegt in unmittelbarer Nähe zum Krefelder Stadtwald. Die Nachbarschaft besteht ausschließlich aus gepflegten, Einfamilienhäusern und profitiert von der familienfreundlichen Anliegerstraße, die zweifelsfrei als eine der Top-Lagen Bockums zu bezeichnen ist. Es besticht durch die unmittelbare Nähe zum Krefelder Stadtwald mit seinen zahlreichen Sport-und Freizeitangeboten (Golf, Tennis, Hockey etc.) und der bekannten Pferderennbahn. Einkaufsmöglichkeiten für den täglichen Bedarf, Ärzte, Kindergärten und Schulen sind fußläufig zu erreichen. Eine gute Verkehrsanbindung, auch an das Autobahnnetz macht Krefeld zu einem interessanten Standort nahe der wirtschaftlichen Zentren an Rhein und Ruhr. Besonders erwähnt sei die neue Flughafenbrücke, die neben der Uerdinger Brücke (zum Breitscheider Kreuz) die Verbindung über den Rhein (Flughafen, Stadt Düsseldorf) optimiert. Die absolut ruhige Lage ohne Fluglärm mit einer ausgeprägten Infrastruktur bilden den hohen Wohnwert dieses stilvollen Gutshofanlage.
Janny van Rüth



Drucken | Immobilie teilen