Daten
- Objekt-Nr.4379
- OrtTönisvorst
- ObjektartMaisonettewohnung
- Zimmer3
- Baujahr1900
- Wohnfläche86.00 m²
- Schlafzimmer2
- Badezimmer1
- separate WCs1
- Terrassen1
- Stellplätze1
- Garagen1
- Zustandmodernisiert
Kosten
- KaufpreisImmobilie ist verkauft!
Käuferprovision: Der guten Ordnung halber möchten wir darauf aufmerksam machen, dass bei Abschluss eines notariellen Kaufvertrages, der durch unseren Nachweis und/oder Vermittlung zustande kommt, der Käufer an uns eine Maklerprovision von 3,57% Käuferprovision vom Gesamtkaufpreis zu zahlen hat. In der Maklerprovision ist die gesetzliche MwSt. von 19% enthalten.
Objekt
Die außergewöhnliche Wohnung mit echtem Haus-Charakter befindet sich in einem historischen Vierkanthof aus dem Jahr 1896, der 1997 umfassend modernisiert wurde und heute 11 Wohneinheiten beherbergt. Die reine Wohnfläche beläuft sich auf ca. 86m², ergänzt durch rund 16m² zusätzlich nutzbare, beheizte Fläche im ausgebauten Spitzboden.
Sie erstreckt sich über mehrere Ebenen – vom Erdgeschoss über das erste Obergeschoss bis hin zum Spitzboden – und verfügt über einen separaten Eingang.
In traumhafter Lage verbindet die gesamte Anlage das Wohnen im Grünen mit der Nähe zur Stadt.
Der ehemalige Gutshof verfügt über zwei prägnante Zugänge: ein massives Holztor als traditionelle Hauptzufahrt sowie ein elegantes schmiedeeisernes Tor bei den Garagen. Die Wohnungseingänge liegen geschützt im Innenhof, der einen privaten, einladenden Bereich mit ländlich-historischem Flair vermittelt.
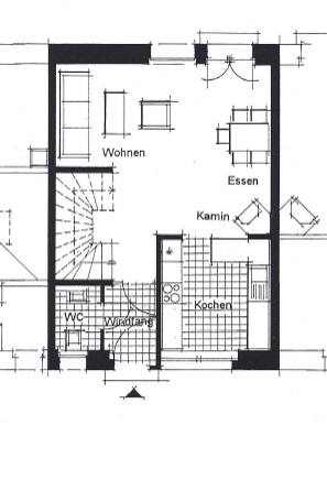
Beim Betreten der Wohnung gelangt man zunächst in den Dielenbereich in dem sich auch der Zugang zum hell gefliesten Gäste-WC befindet. Bereits hier öffnet sich der Blick in das großzügige, offen gestaltete Wohn- und Esszimmer, das nahtlos in die offene Küche übergeht. Ein besonders stimmungsvolles Highlight ist der zentrale, gemauerte Kamin, der an kühleren Tagen zu gemütlichen Stunden vor dem knisternden Feuer einlädt.
Bodentiefe Rundbogenfenster fluten die Küche mit Licht und schaffen im Wohnbereich eine harmonische Verbindung zur gepflasterten Terrasse und zum idyllischen Garten. Das gesamte Erdgeschoss ist durchgehend mit mediterranen Fliesen ausgestattet, die dank der Fußbodenheizung jederzeit eine angenehme Wärme ausstrahlen.
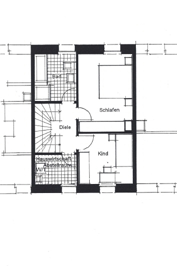
Über die Treppe an der Diele gelangt man ins 1. Obergeschoss, das zwei helle Schlafzimmer mit Parkettboden umfasst. Darüber hinaus befinden sich hier ein Tageslichtbad mit Dusche und Wanne sowie ein funktionaler Hauswirtschaftsraum mit Anschlüssen für Waschmaschine und Trockner.
Oberhalb des ersten Stockwerks befindet sich der ca. 16 m² große, ausgebaute Spitzboden, der durch ein Velux-Dachflächenfenster mit natürlichem Licht versorgt wird. Dieser Raum bietet zusätzliche Nutzfläche, die vielseitig gestaltet werden kann, sei es als Büro, Hobbyraum oder Stauraum.
Der Garten, direkt vom Wohnbereich aus zugänglich, ist vollständig von einer Hecke umgeben und bietet so Privatsphäre und ein geschütztes Ambiente. Eine praktische Außenzapfstelle erleichtert die Bewässerung, während ein rückwärtiges Gartentörchen den Zugang vom Zufahrtsweg ermöglicht und das Entsorgen von Grünschnitt oder ähnlichem komfortabel gestaltet.
Die gesamte Wohnanlage wird effizient über eine moderne Gaszentralheizung aus dem Jahr 2024 beheizt. Zusätzlich erfolgt auch die gesamte Warmwasserversorgung zentral.
Zum Objekt gehört eine großzügige, massiv gebaute Luxusgarage (zusätzlicher KP 19.000 €) mit praktischem Stauraum im Dachboden sowie ein weiterer PKW-Stellplatz im hinteren Bereich der gepflegten Hofanlage.
Fazit: In gefragter, ruhiger Lage verbindet die historische Gutshofanlage das Wohnen im Grünen mit der Nähe zur Stadt. Die außergewöhnliche Wohnung ist komfortabel mit Garten, großer Garage und zusätzlichem PKW - Stellplatz ausgestattet. Sie ist bereits seit 2019 an die jetzigen Bewohner vermietet und befindet sich in einem sehr gepflegten Zustand. Ein interessantes Immobilienangebot daher auch für Kapitalanleger!
Ausstattung
- Nachfolgend haben wir für Sie die wesentlichen Eckdaten der Immobilie zusammengestellt:
- ETW mit Haus-Charakter
- vermietet seit 2019
- historischer Vierkanthof mit insgesamt 11 Wohneinheiten
- ca. 1896 erbaut, im Jahr 1997 hochwertig und umfassend saniert
- 86 m² Wohnfläche
- 16 m² wohnlich ausgebaute Nutzfläche im Spitzboden
- Fußbodenheizung
- gemauerter Kaminofen im Wohnund Essbereich
- Hauswirtschaftsraum
- 2 Schlafzimmer
- Tageslichtbad mit Dusche und Wanne
- EG: mediterrane Fliesen
- 1. OG: Buche-Echtholzparkett
- Spitzboden: Laminat
- Garten mit Terrasse
- neue Gasheizung 2024
- alle Fensterrahmen und das Garagentor neu lackiert 2025
- große Garage mit Abstellmöglichkeit im Dachboden (zzgl. 19.000,EUR)
- weiterer, zur Wohnung gehöriger PKW-Freiplatz
Sonstige Angaben
Der Energieausweis liegt vor.
Schreurs Immobilien – Ihr Immobilienmakler in Krefeld und am Niederrhein für Vermietung und Verkauf.
Bitte beachten Sie, dass wir für eine schnellere Bearbeitung ein vollständig ausgefülltes Kontaktformular inkl. Ihrer Adressangabe sowie Ihrer Rufnummer benötigen. Unvollständige Kontaktangaben können von uns leider nicht bearbeitet werden.
Grundrisse
Energieausweis
- Energieausweistyp: Verbrauchsausweis
- Verbrauchskennwert: 145.40 kWh/(m²*a)
- Endenergiebedarf: kWh/(m²*a)
- Gültigkeit: 2031-03-16
- Mit Warmwasser: Nein
- Wesentliche Energieträger: Gas
- Baujahr laut Energieausweis: 1997
- Energiekennwert: E
Lage
Die hier angebotene Maisonettewohnung befindet sich zwischen der Ortschaft St. Tönis - Tönisvorst und dem Krefelder Stadtteil - Forstwald in ländlicher Umgebung. Diverse Einkaufsmöglichkeiten sowie Kindergärten und Schulen befinden sich in der Nähe. ÖPNV-Haltestellen Richtung Krefeld, Mönchengladbach, Viersen, Willich und Kempen befinden sich in fußläufiger Nähe.
Der nächste Bahnhof mit Direktverbindungen liegt ca. 5 Fahrminuten entfernt. Verschiedene Grünanlagen mit zahlreichen Freizeitmöglichkeiten befinden sich ebenfalls in der Nähe. Die Autobahn (A44) sowie verschiedene Bundesstraßen sind gut zugänglich und bieten beste Verbindungen nach Düsseldorf, Flughafen, Neuss, Duisburg und anderen Orten des Ruhrgebietes.
Umberto Santoriello



Drucken | Immobilie teilen