Daten
- Objekt-Nr.3130
- OrtKrefeld / Fischeln
- ObjektartEinfamilienhaus
- Zimmer6
- Baujahr1962
- Grundstück754.00 m²
- Wohnfläche204.34 m²
- Schlafzimmer3
- Badezimmer1
- separate WCs1
- Stellplätze4
- Garagen2
- Zustandrenovierungsbedürftig
Kosten
- KaufpreisImmobilie ist verkauft!
Käuferprovision: Der guten Ordnung halber möchten wir darauf aufmerksam machen, dass bei Abschluss eines notariellen Kaufvertrages, der durch unseren Nachweis und/oder Vermittlung zustande kommt, der Käufer an uns eine Maklerprovision von 3,57% Käuferprovision vom Gesamtkaufpreis zu zahlen hat. In der Maklerprovision ist die gesetzliche MwSt. von 19% enthalten.
Objekt
Sie sind auf der Suche nach einem freistehenden Einfamilienhaus in zentraler Lage von Krefeld - Fischeln, noch dazu mit einem familiengerechten Garten und idealer Sonnenausrichtung? Möglichst 2 große Garage on top?
Hier ist vielleicht Ihr neues Zuhause!
Das Einfamilienhaus mit separatem Garagenanbau und zweiter großer Garage wurde ca. im Jahre 1962 in hochwertiger, massiver Bauweise errichtet. Das Haus ist vollunterkellert und wurde in den 70ern aufwendig durch den Ausbau des Dachgeschosses erweitert. Das beeindruckende Giebelzimmer mit seiner aufwendigen Verglasung bietet dem Käufer jeglichen Spielraum seine Wohn-Ideen umzusetzen.
Das großzügige Einfamilienhaus mit bietet eine Wohnfläche von ca. 204m².
Das Einfamilienhaus wurde erst kürzlich vollständig geräumt und steht zur sofortigen Nutzung und notwendigen Modernisierungen seinem zukünftigen Eigentümer zur Verfügung.
Die repräsentative Erdgeschossebene bedarf einer Neuorientierung nach modernem anspruchsvollem Wohnen. Hier sind Ihrer Phantasie keine Grenzen gesetzt.
Eine seltene Option. Perfekt für die große Familie!
Die allseits einheitliche Klinkerfassade der Gebäude vermittelt zudem den Eindruck eines stattlichen Einfamilienhauses.
Der ruhig und sonnig gelegene Garten hat eine ideale Größe für Familien, Spiel und Spaß und Gartenliebhaber.
Eine geräumige Garage mit Zugang zum Keller sowie eine zweite rechtsseitige Garage runden das attraktive Angebot ab.
Mit diesem großartigen Haus in gefragter Wohnlage unmittelbar am Ortszentrum von Fischeln, erfüllen Sie sich und Ihrer Familie, nach durchzuführenden Modernisierungsmaßnahmen, den Traum vom individuell gestalteten Eigenheim.
Sprechen Sie uns an und vereinbaren Sie einen Besichtigungstermin!
Ausstattung
Sonstige Angaben
Der Energieausweis ist beantragt und liegt zur Besichtigung vor.
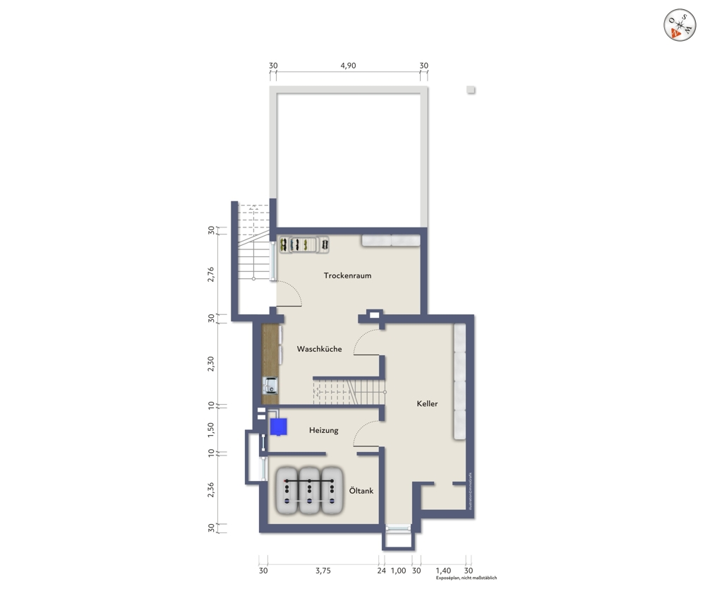
Grundrisse
Energieausweis
Der Energieausweis für diese Immobilie ist beantragt und liegt zur Besichtigung vor.
Lage
Das klassische Einfamilienhaus der 70-iger Jahre liegt im Krefelder Süden, dem beliebten Stadtteil Fischeln, der die Vorzüge einer kompletten Infrastruktur, Zentrumsnähe und hohem Freizeitangebot mit naturnahem Umfeld genießt.
2 Kitas, 1 Grundschule und weiterführende Schulen wie das Maria-Sybilla-Merian Gymnasium und die Freiherr-Vom-Stein Realschule sowie ein Kinderspielplatz befinden sich ebenfalls im unmittelbaren Umfeld.
Ebenso sind Geschäfte des täglichen Bedarfs, Ärzte und Apotheken etc. umfangreich vorhanden.
Der Fischelner Stadtpark oder auch das Hallenschwimmbad bzw. ein Freibad, Tennis- und Sportplätze befinden sich im nahen Umfeld.
Die erstklassige Lage in dieser gewachsenen Umgebung ist neben der ausgeprägten Infrastruktur und der verkehrsgünstigen Anbindung an den Großraum Düsseldorf (Autobahn A57 und A44) sowie in das Rhein-Ruhrgebiet, ebenso durch die hohe Lebens- und Wohnqualität definiert. Die K-Bahn U76 ist fußläufig erreichbar und bringt Sie bequem in die umliegenden Ballungsräume, so ist Düsseldorf ganz komfortabel auch ohne Auto direkter Nachbarschaft greifbar. Die Straßenbahn- und Busverbindung (ÖPNV) in die Krefelder Innenstadt und angrenzenden Regionen liegt nur wenige Gehminuten entfernt.
Markus Schreurs



Drucken | Immobilie teilen